横浜市泉区岡津町 建築条件なし売地(34.5坪)
-
所在地-
-
交通-
-
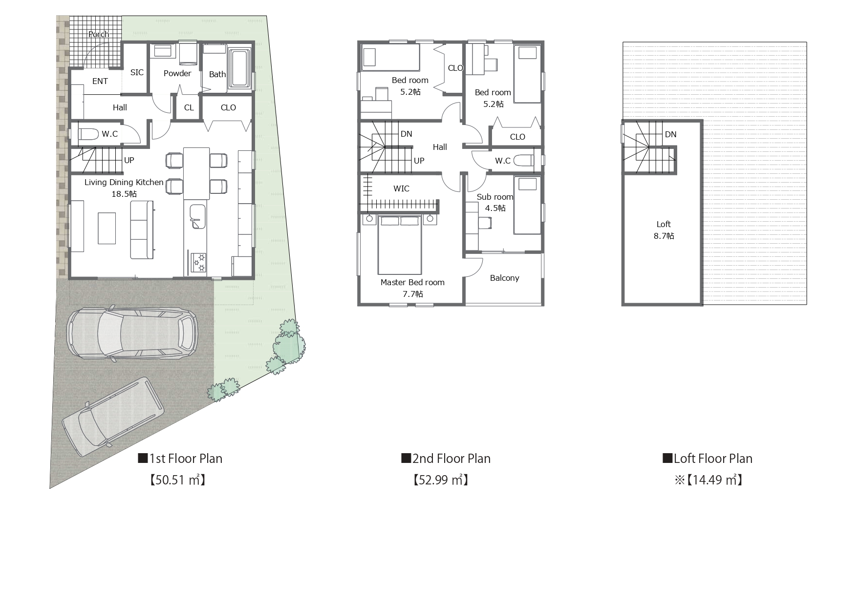
敷地面積
-
販売価格未定来場予約・お問い合わせ
LOCATION & ACCESS
OUTLINE
| 物件名 | - |
|---|---|
| 住所 | - |
| 交通 | - |
| 総区画数 | - |
| 敷地面積 |
| 販売区画数 | - |
|---|---|
| 販売価格 | 未定 |
| 諸費用 | - |
| 地目 | - |
|---|---|
| 土地の権利形態 | - |
| 土地状況 | - |
| 用途地域 | - |
| 私道負担 | - |
| 建ぺい率 | - |
| 容積率 | - |
| 造成完了時期 | - |
| 引き渡し時期 | - |
| その他制限事項 | - |
| その他概要・ 特記事項 |
- |
| 取引態様 | - |
| 施工会社 | - |
| 売主 | - |
| 販売会社 | - |
| 情報提供日 | |
| 次回更新日 |