建築条件付き売地
横浜市都筑区茅ヶ崎町 全2区画 建築条件付き売地
-
所在地横浜市都筑区茅ヶ崎町137番5、137番6
-
交通市営地下鉄ブルーライン「センター南」駅
徒歩10分
市営地下鉄ブルーライン「センター南」駅
徒歩11分
-
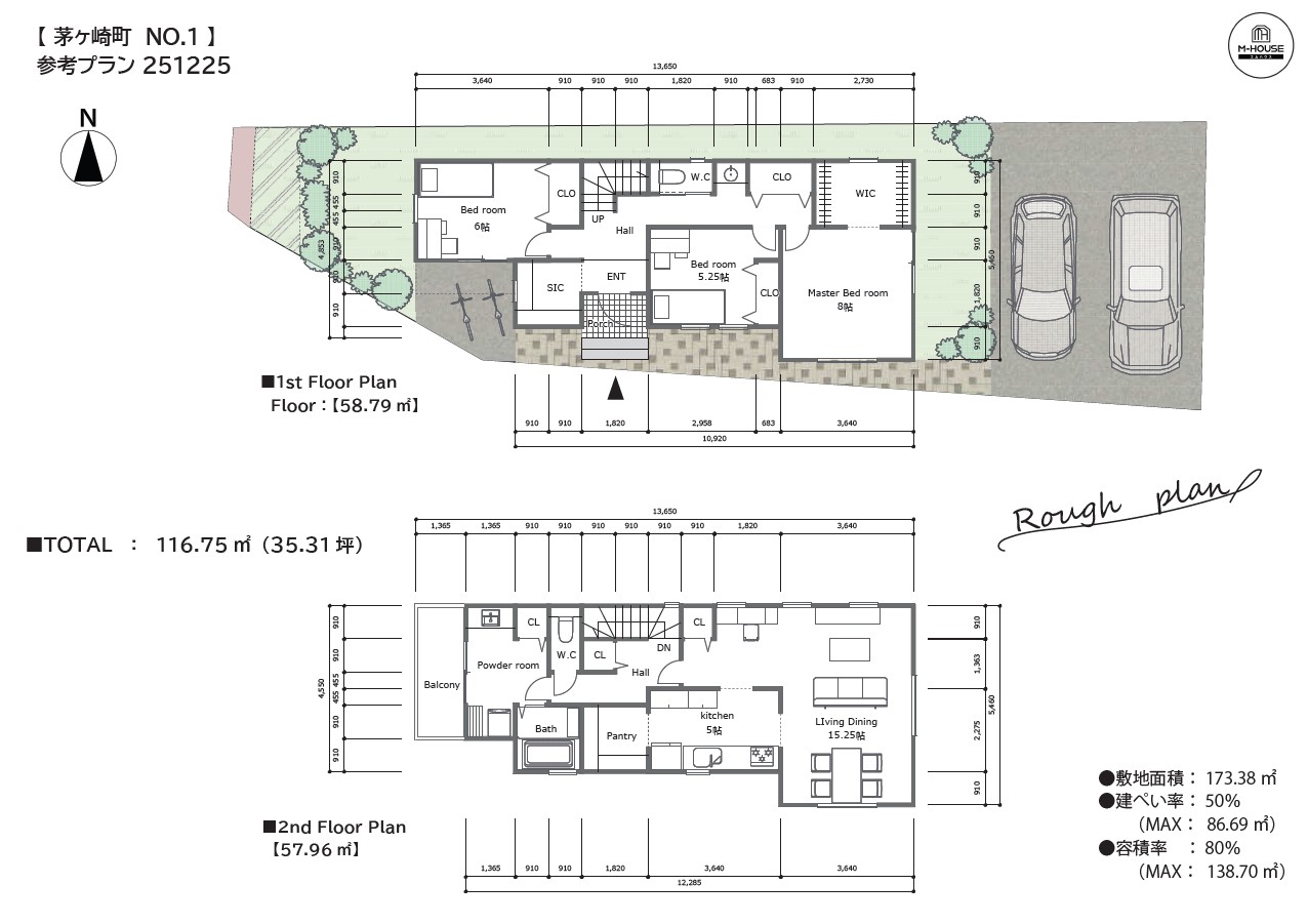
敷地面積173.03㎡(52.34坪)〜
183.45㎡(55.49坪) -
販売価格5,980 〜6,280 万円
CONCEPT
暮らしやすい落ち着いた住環境。
利便性と静けさを両立した宅地です。
■センター南駅から徒歩10分の好立地。
■緑豊かで、日々の買い物や通勤通学に便利です。
■利便性と静けさを上手く両立することができる住環境です。
LAND PLAN
接道:西側 法42条2項(狭あい促進路線)(公道)約2.7m幅員に接道、南側 否道路
面積:173.03㎡(52.34坪)~ 183.45㎡(55.49坪)
HOUSE PLAN
PHOTO GALLERY
当社建物施工例
LOCATION & ACCESS
横浜市都筑区茅ヶ崎町137番5、137番6
-
茅ヶ崎東小学校550m
(徒歩7分) -
茅ヶ崎中学校950m
(徒歩12分) -
オーケー港北中央店500m
(徒歩7分) -
吾妻山公園450m
(徒歩6分)
- ※掲載の徒歩分数は80m、自転車分数は250m、車分数は400mを1分として算出した概算時間です。
OUTLINE
| 物件名 | 横浜市都筑区茅ヶ崎町 建築条件付き売地 |
|---|---|
| 住所 | 横浜市都筑区茅ヶ崎町137番5、137番6 |
| 交通 |
市営地下鉄ブルーライン「センター南」駅 徒歩10分 市営地下鉄ブルーライン「センター南」駅 徒歩11分 |
| 総区画数 | 2区画 |
| 敷地面積 | 173.03㎡(52.34坪)〜 183.45㎡(55.49坪) |
| 販売区画数 | 2区画 |
|---|---|
| 販売価格 | 5,980〜6,280 万円 |
| 諸費用 | - |
| 地目 | 宅地 |
|---|---|
| 土地の権利形態 | 所有権 |
| 土地状況 | 造成中 |
| 用途地域 | 第1種低層住居専用地域 |
| 私道負担 | - |
| 建ぺい率 | 50% |
| 容積率 | 80% |
| 造成完了時期 | - |
| 引き渡し時期 | 相談 |
| その他制限事項 | この土地は土地売買契約後2か月以内に売主と建築請負契約を締結する事を条件に販売致します。 土地売買契約後、設計の協議をして頂きますが、2か月以内にこの請負契約が成立しない場合には土地売買契約は解除され、売主は土地代金(手付金含む)を全額無条件で返還し、土地購入者は土地を現状復旧の上、売主に引渡して頂く必要がございます。 |
| その他概要・ 特記事項 |
設備:公営水道・公共下水道・都市ガス |
| 取引態様 | 売主 |
| 施工会社 | - |
| 売主 | - |
| 販売会社 | - |
| 情報提供日 | 2025年11月 |
| 次回更新日 |
※建築条件付き土地とは、その土地に建築する建物の建築請負契約が、一定期間内に成立することを条件として売買される土地のことをいいます。建築請負契約成立に向けて設計プランを協議するため、土地購入者が自己の希望する建物の設計協議をするために必要な相当の期間の交渉期間が設定され、その期間内で希望を満たすプランが実現できたかどうかにより結論を出します。なお、この期間は概ね3ヶ月程度とされています。納得のいくプランが出来ず、建築請負契約が成立しない場合、土地売買契約は白紙に戻り、土地契約にかかった代金(土地代金、手付金など)は名目のいかんに関わらず、全て返却されます。














