新築分譲住宅
【新規物件】戸塚区俣野町 1号棟・2号棟 新築分譲住宅
-
所在地横浜市戸塚区俣野町
-
交通相鉄いずみ野線 「湘南台」駅
バス10分
バス停「観音堂前」停
徒歩1分
-
敷地面積125.05㎡(37.82坪)
-
建物面積99.78㎡(101.01坪)〜
30.18㎡(30.55坪) -
販売価格4,499 万円 (税込)
CONCEPT
様々な住宅メーカーの邸宅が立ち並ぶ、閑静な住宅地です。
大型分譲地新築2棟現場
各4,499万円
敷地面積約37坪
建物面積約30坪
▼詳細など、お気軽にお問い合わせください▼
株式会社M-HOUSE 本店営業部 045-801-7717
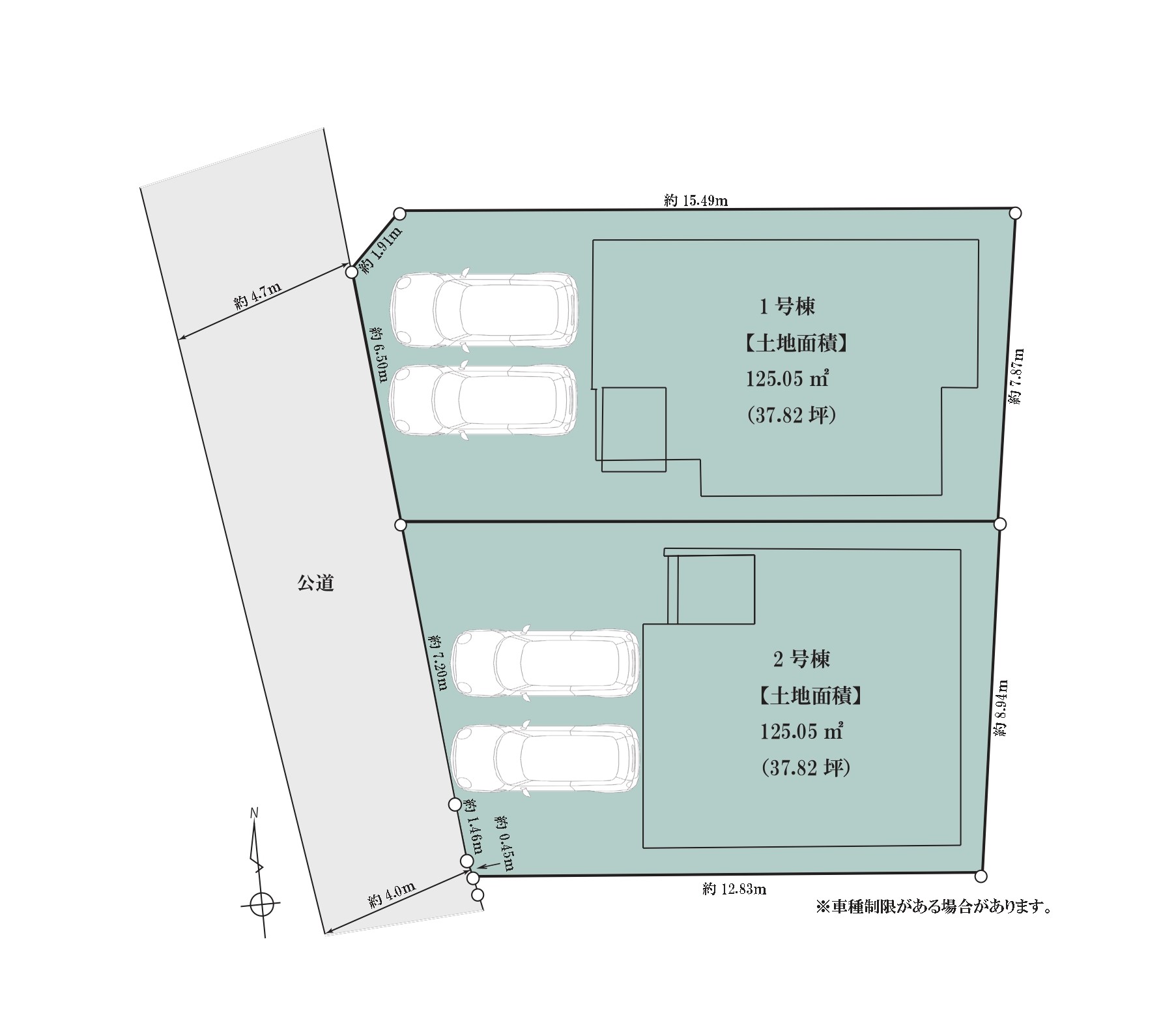
LAND PLAN
接道:西側約4.0m公道
HOUSE PLAN
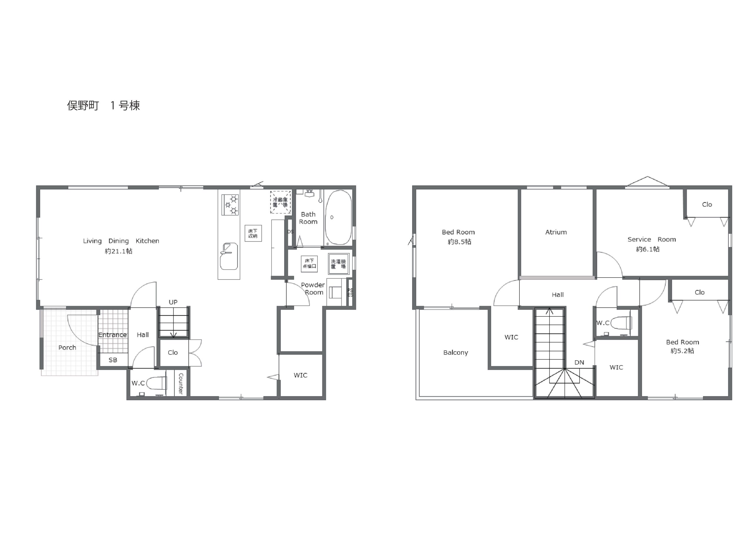
1号棟 2LDK+S
敷地面積:125.05㎡(約37.82坪)
建物面積:99.78㎡(約30.18坪)
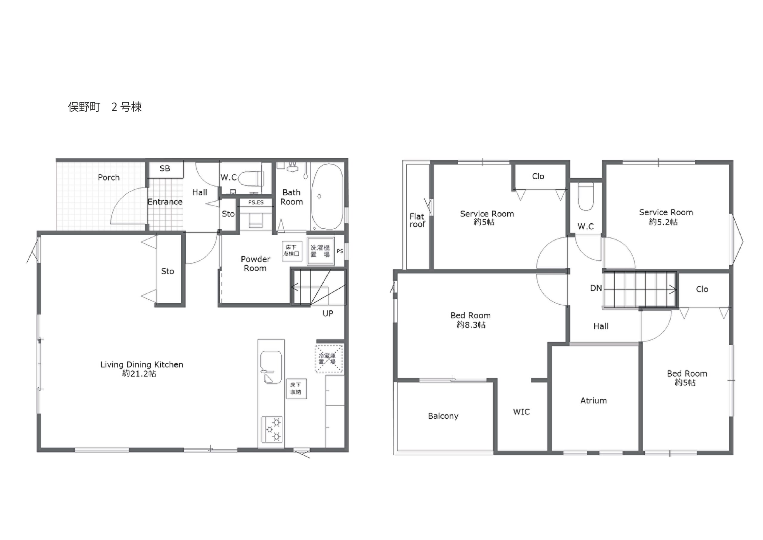
2号棟 2LDK+S
敷地面積:125.05㎡(約37.82坪)
建物面積:101.01㎡(約30.55坪)
LOCATION & ACCESS
横浜市戸塚区俣野町
-
横浜市立横浜深谷台小学校1400m(徒歩18分)
-
横浜市立深谷中学校1000m(徒歩13分)
-
ヨークフーズ戸塚深谷町店1300m(徒歩17分)
-
俣野町第一公園650m(徒歩9分)
- ※掲載の徒歩分数は80m、自転車分数は250m、車分数は400mを1分として算出した概算時間です。
OUTLINE
| 物件名 | 戸塚区俣野町 1号棟・2号棟 新築分譲住宅 |
|---|---|
| 住所 | 横浜市戸塚区俣野町 |
| 交通 |
相鉄いずみ野線 「湘南台」駅 バス10分 バス停「観音堂前」停 徒歩1分 |
| 総戸数 | 2戸 |
| 開発面積 | |
| 構造・階建て | 木造アスファルトシングル葺2階建 |
| 敷地面積 | 125.05㎡(37.82坪) |
| 建物面積 | 99.78㎡(101.01坪)〜 30.18㎡(30.55坪) |
| 販売戸数 | 2戸 |
|---|---|
| 販売価格 | 4,499 万円(税込) |
| 最多販売価格帯 | - |
| 間取り | 2LDK+S |
| 諸費用 | - |
| 建築確認番号 | 1号棟:第25UDI1W建04268号 2号棟:第25UDI1W建04269号 |
|---|---|
| 地目 | 宅地 |
| 土地の権利形態 | 所有権 |
| 用途地域 | 無指定 |
| 私道負担 | あり |
| 建ぺい率 | 50% |
| 容積率 | 80% |
| 完成時期 | 2025年11月 |
| 入居時期 | - |
| その他制限事項 | - |
| その他概要・ 特記事項 |
- |
| 取引態様 | - |
| 施工会社 | - |
| 売主 | - |
| 販売会社 | - |
| 情報提供日 | 2025年9月 |
| 次回更新日 |


